CABINET LEDEUX Agence
Télécharger la fiche

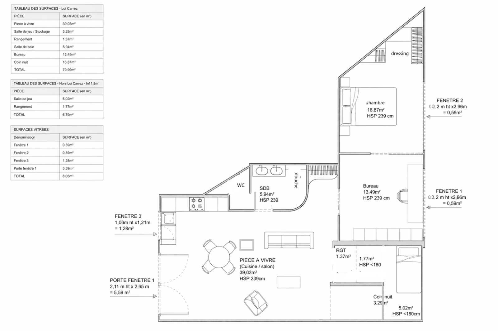
Loft 3 pièce(s) 2 chambre(s) 86.29 m²

Nice (06000)
400 000 € Référence 17shakes

A propos de ce bien

 Situé Avenue Shakespeare, dans un environnement résidentiel composé d’immeubles bourgeois, cet appartement bénéficie d’un emplacement recherché, à la fois calme et proche de toutes les commodités. Vous rejoignez la Promenade des Anglais en environ 10 à 12 minutes à pied (accès par le boulevard Gambetta), ainsi que les plages et le bord de mer. Les commerces de proximité sont accessibles rapidement, et la ligne 2 du tramway, reliant notamment le centre-ville et l’aéroport, se situe à quelques minutes, facilitant tous vos déplacements.

Au cœur d’une cour intérieure récemment réaménagée, découvrez cet ancien atelier entièrement rénové avec goût, transformé en un appartement de 80 m² aux prestations soignées et contemporaines.

Composé d' un vaste espace de vie de 39 m² lumineux (exposé sud), comprenant un vaste salon avec cuisine entièrement équipée. Celle-ci se distingue par des matériaux de qualité, notamment un élégant plan de travail en travertin, un évier intégré et de nombreux luminaires qui subliment les volumes et créent une atmosphère chaleureuse.

L’appartement dispose d’une salle d’eau avec WC, pensée avec  des matériaux nobles tels que le noyer, le terrazzo et une faïence de grande qualité.

Côté nuit, une belle chambre principale avec dressing intégré offre un espace confortable et harmonieux, sublimé par une verrière au design soigné reprenant les codes esthétiques du lieu. Dans son prolongement, une pièce supplémentaire d’environ 13 m² peut être aménagée selon vos besoins : extension de la suite, bureau ou salon privé.

Un espace complémentaire d’environ 8 m² (hors loi Carrez) permet d’accueillir un second couchage confortable, idéal pour recevoir ou créer un coin nuit indépendant.

Entièrement rénové, l’appartement bénéficie d’équipements modernes : climatisation réversible, VMC, double vitrage anti-effraction. Les charges sont particulièrement faibles (30 €/mois), ce qui en fait un bien idéal en pied-à-terre ou en investissement locatif.

Situé en rez-de-chaussée dans une cour sécurisée par portail, cet appartement profite d’un environnement calme. La cour, récemment goudronnée, est agrémentée d’un espace végétalisé  (avec arrosage automatique) evolutif. selon vos gout 

Caractéristiques de ce bien

  • Surface 86,29 m²
  • carrez 79,40 m²
  • séjour 39 m²
  • 2 chambre(s)
  • 1 salle(s) d'eau
  • cuisine américaine (équipée)
  • Chauffage individuel : air pulsé (climatisation)
  • exposition Nord-Sud
  • 7 étage(s)
  • vue COUR INTERIEURE
  • accès handicapé

Diagnostics énergétiques

DPE
GES
DPE ANCIENNE VERSION

Informations financières

Prix de vente 400 000 € Les honoraires d'agence seront intégralement à la charge du vendeur
Taxe foncière annuelle 600 €

Calcul des mensualités

* Champs obligatoires